カスタリア渋谷櫻丘501の募集情報

ホーム | 物件探しを依頼する | ログイン | 未公開物件から探す  | お気に入りに登録した物件0

TOP > 賃貸物件検索 > 賃貸物件詳細

カスタリア渋谷櫻丘 501

カスタリア渋谷櫻丘

所在地 東京都渋谷区桜丘町29-21
交通 京王井の頭線 渋谷駅 徒歩8分
東急東横線 代官山駅 徒歩12分
所在階 部屋番号5階/8階建 501
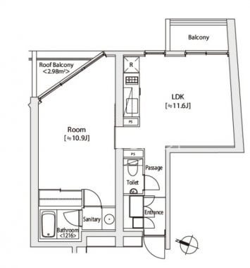
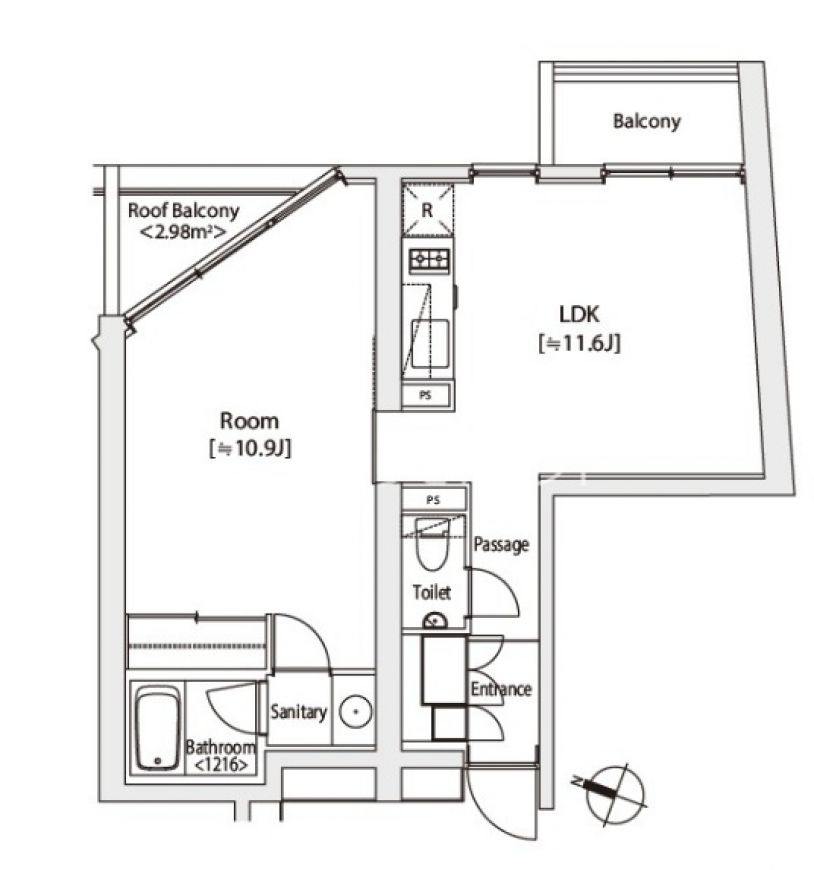
間取り/面積1LDK / 49.94m²
賃料 332,000
礼金/敷金/保証金0.0ヶ月 / 1.0ヶ月 / - -
管理費/共益費10,000円 /
保険/保証料家財保険・共済 22,000 円
構造/築年月鉄筋コンクリート造 / 2007年4月
コメント【仲介手数料最大無料です!!】★オートロツク★角部屋
入居即時  
情報更新日2026年05月31日
情報有効期限2026年06月14日
取引態様仲介
間取内訳/間取備考LDK11.6帖 / 洋10.9帖/
設備条件/設備備考礼金ゼロ / 角部屋 / 二階以上 / システムキッチン / バス・トイレ別 / 洗面化粧台独立 / 洗浄便座 / シューズインクローゼット / CSアンテナ / BSアンテナ / インターネット / バルコニー / フローリング / 上水道(公営) / 下水道(公共下水) / ガス(都市ガス) / コンロ(ガス) / コンロ数(二口) /
契約条件/他費用 / 鍵(税込) 27,500円
 
カスタリア渋谷櫻丘へのお問い合わせ先
会社名ケイティーホームズ株式会社・賃貸部
住所東京都渋谷区桜丘町13番9号
TEL03-6809-0697
物件番号0093-00013087

この物件の周辺環境マップ

この物件にメールでお問い合わせ

Copyright (C) ケイティーホームズ株式会社・賃貸部